電設資材製品
高圧配電用アレスタ
製品の主な特徴
- 保護特性が優れています。
- 多重雷サージや多頻度サージの処理に適しています。
- 高いエネルギー処理能力を有しています。
- 耐汚損性能が優れています。
- 小形・軽量で、取り扱いが容易です。
- JEC-2374:2015/JIS C 4608 規格に適合しています。
- 国土交通省公共建築工事標準仕様書に適合しています。
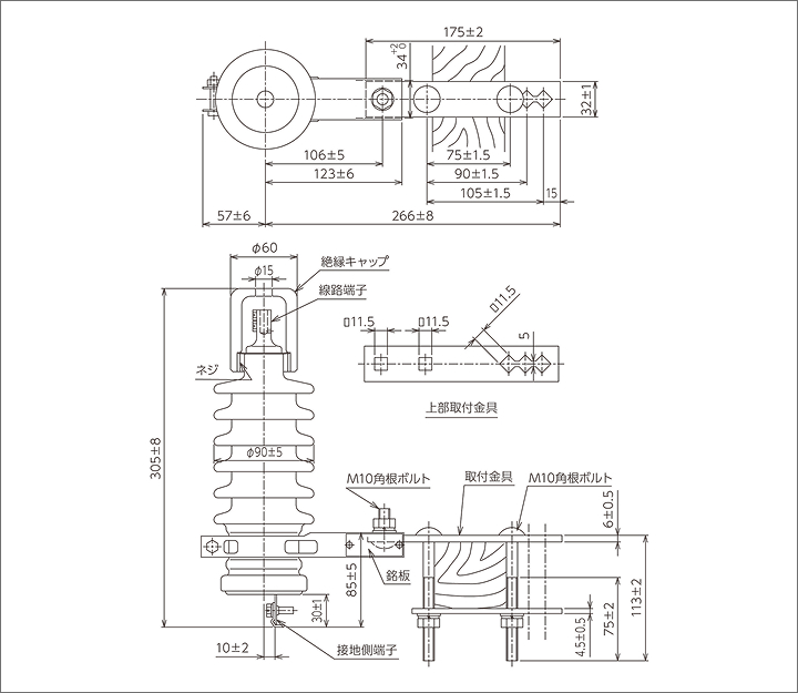
外形図
定格および仕様
| 形式 | RVSQ-6GPS | RVSQ-6GP | |
|---|---|---|---|
| 系統接地方式 | 非有効接地系統 | ||
| 系統電圧 [kV] | 6.6 | ||
| 定格電圧[kV] | 8.4 | ||
| 公称放電電流[kA] | 2.5 | ||
| 商用周波放電開始電圧[kV] | 13.9以上 | ||
| 制限電圧 (at 2.5kA)[kV] | 22以下 | ||
| 耐電圧 | 商用周波[kV] | 22 | |
| 雷インパルス[kV] | 60 | ||
| 取付金具 | 取付金具付属 | ||
| 汚損区分 | 一般形(0.06mg/cm2) | 耐塩形(0.35mg/cm2) | |
| 適合規格 | JEC-2374:2015/JIS C 4608 | JEC-2374:2015 | |
| 質量[kg] | 1.8 | 3 | |
- (注)本品は株式会社東芝製になります。
ダウンロード
製品カタログ
図面PDF
電設資材製品に関するお問い合わせ
電設資材製品 営業担当
- フリー
ダイヤル 0800-200-0440
- 東日本
営業部 03-3251-2690 FAX:03-3251-2695 - 名古屋
営業グループ 0568-67-9811 FAX:0568-67-9815 - 大阪
営業グループ 06-6534-0031 FAX:06-6534-0033 - 福岡
出張所 092-720-5901 FAX:092-720-5902