架空線用高圧開閉器
GP形
製品の主な特徴
- 変圧器・コンデンサの自動制御用などに最適。多頻度開閉可能。
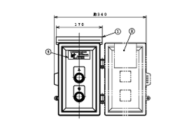
外形図
定格および仕様
| 開閉器 | 名称 | 屋外用高圧ガス開閉器 | ||
|---|---|---|---|---|
| 形式 | GP-201R | |||
| 操作方法 | 自動操作 | |||
| 使用場所 | 屋外 | |||
| 定格電圧[kV] | 7.2 | |||
| 定格電流[A] | 200 | |||
| 定格周波数[Hz] | 50 / 60 | |||
| 定格短時間電流(実効値)[kA] | 8 | |||
| 定格短絡投入電流(波高値)[kA] | A級 20 | |||
| 定格過負荷遮断電流[A] | A級 750 | |||
| 定格耐電圧[kV] | 60 | |||
| 汚損特性 | 耐重塩じん用[0.35mg/cm2] | |||
| 定格ガス圧力 | 0.5kgf/cm・G(20°C) | |||
| 連続開閉 性能 |
電気的 | 負荷電流[回] | 1000(200A) | |
| 励磁電流[回] | 50000(20A) | |||
| コンデンサ電流[回] | 50000(80A) | |||
| 機械的[回] | 50000 | |||
| 操作電源 | 操作方法 | 瞬時励磁方式 | ||
| 定格制御電圧[V] | DC 100 | |||
| 投入操作電流[A] | 13 | |||
| 引外し操作電流[A] | 6 | |||
| 主回路口出線(EPR 絶縁電線) | 60mm2× 0.3m | |||
| 制御口出線(VCT ケーブル) | 2mm2 7心 3m | |||
| 総質量[kg] | 30 | |||
| 適用制御装置 | 名称 | 遠方操作制御装置 | ||
| 形式 | CR-RF1(屋外用) | |||
| 制御電圧[V] | AC / DC 100 | |||
| 総質量[kg] | 2 | |||
- (注)GP形には握手(入・切セット)を標準付属。
ダウンロード
製品カタログ
取扱説明書
図面PDF
オプション・関連製品
電設資材製品に関するお問い合わせ
電設資材製品 営業担当
- フリー
ダイヤル 0800-200-0440
- 東日本
営業部 03-3251-2690 FAX:03-3251-2695 - 名古屋
営業グループ 0568-67-9811 FAX:0568-67-9815 - 大阪
営業グループ 06-6534-0031 FAX:06-6534-0033 - 福岡
出張所 092-720-5901 FAX:092-720-5902
