PC(高圧カットアウト)
耐塩用箱型高圧カットアウト
製品の主な特徴
箱形の操作性をそのままにして、汚損特性0.35mg/cm2を有しており、塩害地区にも利用可能。またカットアウトの本体は絶縁耐力・耐候性ともに優れた高圧磁器で形成されています。このため長期の使用にも信頼度が高く絶縁劣化の恐れがありません。また、充電部防護形であり安全にも配慮した構造になっています。また、フック棒操作により簡単に開閉が可能です。
- PC-6Sタイプには、テンションヒューズから限流ヒューズまで幅広くのヒューズが可能でありトランス、コンデンサ 保護が可能となります。
- PC-7Sは、ヒューズ100Aまで装着可能で、大容量のトランス保護に適してます。
- PFHは、小電流から大電流まで全領域遮断可能とする限流ヒューズPFU-1(25Aまで)が装着できる唯一のプライマリーカットアウトです。
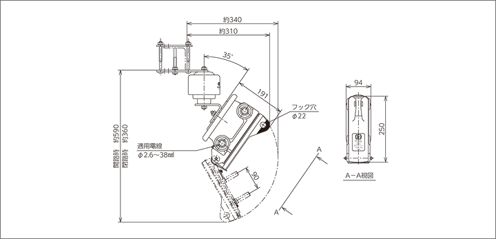
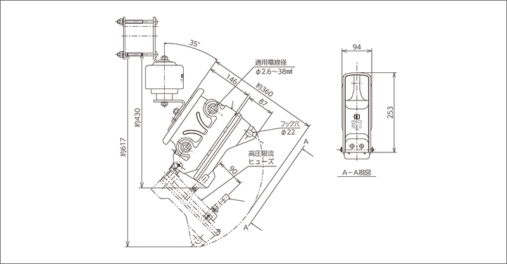
外形図
定格および仕様
| 名称 | 耐塩用高圧カットアウト | 耐塩用限流ヒューズ付 高圧カットアウト |
||||
|---|---|---|---|---|---|---|
| 形式 | PC-6S-30 | PC-6S-50 | PC-7S | PFH-2S | ||
| 定格電圧[kV] | 7.2 | |||||
| 定格周波数[Hz] | 50 / 60 | |||||
| 定格電流[A] | 30 | 50 | 100 | 30 | ||
| 定格開閉容量 | 負荷電流[A] | 30 | 50 | 100 | 30 | |
| コンデンサ電流[A] | ― | |||||
| 連続開閉性能 | 電気的[回] | 50 | ||||
| 機械的[回] | 300 | |||||
| 定格短時間電流(実効値)[kA] | 2 | 3 | 5 | ― | ||
| 定格遮断電流[kA] | 1.5 | 3 | 40(対称値) | |||
| 定格耐電圧[kV] | 60 | |||||
| 汚損特性 | 耐重塩じん用[0.35mg/cm2] | |||||
| 使用場所 | 屋外用 | |||||
| 総質量[kg] | 8.3 | 9.7 | 10 | |||
| リンク適用 ヒューズ |
速動形ヒューズ (テンションヒューズ) |
1A ~ 30A | 1A ~ 50A | 5A ~ 100A | ― | |
| 遅動形ヒューズ (タイムラグヒューズ) |
1A ~ 30A | 1A ~ 30A | ― | ― | ||
| ダブルヒューズ | ― | ― | ― | ― | ||
| 限流ヒューズ | PFU-1 | ― | ― | ― | 7A ~ 25A | |
| QC-1 | 7A ~ 15A | 7A ~ 15A | ― | ― | ||
| 素通し線 | 30A用 | 30A、50A用 | 100A用 | ― | ||
| 取付金具 | 腕金・アングル用 | 腕金用 | ||||
| 耐塩中間碍子 | GXS-S 1600 | |||||
ダウンロード
製品カタログ
取扱説明書
図面PDF
-
PC(耐塩用屋外)
-
PFH(耐塩用屋外)
-
オプション・関連製品
オプション・関連製品
電設資材製品に関するお問い合わせ
電設資材製品 営業担当
- フリー
ダイヤル 0800-200-0440
- 東日本
営業部 03-3251-2690 FAX:03-3251-2695 - 名古屋
営業グループ 0568-67-9811 FAX:0568-67-9815 - 大阪
営業グループ 06-6534-0031 FAX:06-6534-0033 - 福岡
出張所 092-720-5901 FAX:092-720-5902





